川西市錦松台
■分譲宅地(建築条件付土地)
■川西市錦松台1■阪急宝塚線/川西能勢口駅 阪急バス12分 錦松台バス停 徒歩5分
■,土地価格1,105万円〜1,405万円

|
| 川西市錦松台1 |
 |
阪急宝塚線 川西能勢口駅 阪急バス12分
錦松台バス停 徒歩5分 |
 |
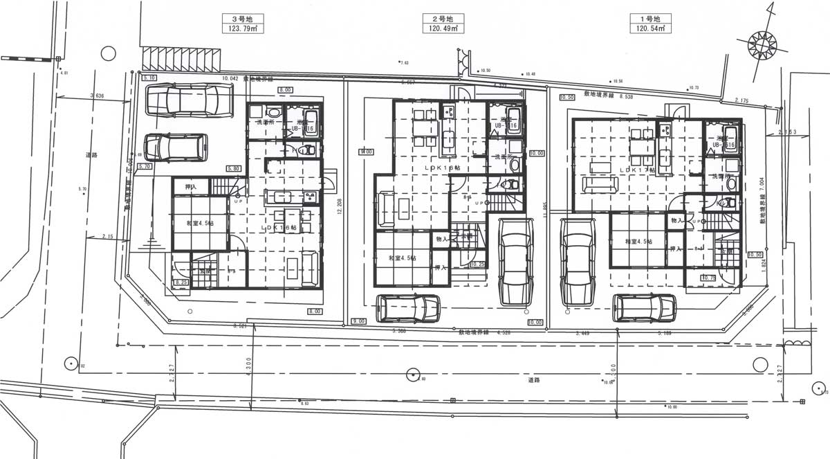
| ★閑静な住宅地。
★車庫2台可。
★1号地 120.54u 1,375万円
★2号地 120.49u 1,105万円
★3号地 123.79u 1,405万円
★ 水道分担金314,100円別途要
|
|
| 土地価格 |
1,105万円〜 |
所在地
|
川西市錦松台1 |
| 土地面積 |
120.49u〜 |
建築床面積 |
95u |
| 交通 |
阪急宝塚線 川西能勢口駅 阪急バス12分 錦松台バス停 徒歩5分 |

販売戸数
|
3戸 |
総区画数
|
3戸 |
地目
|
宅地 |
道路幅員
|
4.3m |
用途地域
|
第1種低層住居専用地域 |
| 建ぺい率 |
50% |
容積率
|
100% |
設備
|
関西電力・都市ガス・公営水道・公共下水 |
取引形態
|
仲介 |
| |
1号地 |
2号地 |
3号地 |
| 土地 |
120.54u
(36.46坪) |
120.49u
(36.44坪) |
123.79u
(37.44坪) |
| 土地価格 |
13,750,000円 |
11,050,000円 |
14,050,000円 |
| 建物 |
95u
(28.73坪) |
95u
(28.73坪) |
95u
(28.73坪) |
| 建物価格
(税込) |
15,750,000円 |
15,750,000円 |
15,750,000円 |
| 販売価格
(税込) |
29,500,000円 |
26,800,000円 |
29,800,000円 |
| 水道分担金
(税込) |
314,100円 |
314,100円 |
314,100円 |
|
GoogleMaps Beta で運用しています。建物、土地等の位置を特定するものではありません
|

|
|