川西市長尾町
■分譲宅地(建築条件付土地)
■川西市長尾町14■能勢電鉄線/一の鳥居駅 徒歩5分
■分譲価格2,770万円

|
| 川西市長尾町14 |
 |
| 能勢電鉄線 一の鳥居駅 徒歩5分 |
 |
| ★駅近。
★車庫2台可。
★1号地、土地付建物セット価格2,770万円(外構・消費税込)
|
|
| 土地価格 |
1号地、土地付建物セット価格2,770万円
(外構・消費税込) |
所在地
|
川西市長尾町14 |
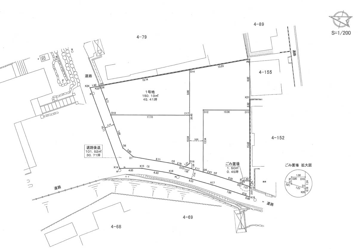
| 土地面積 |
150.13u |
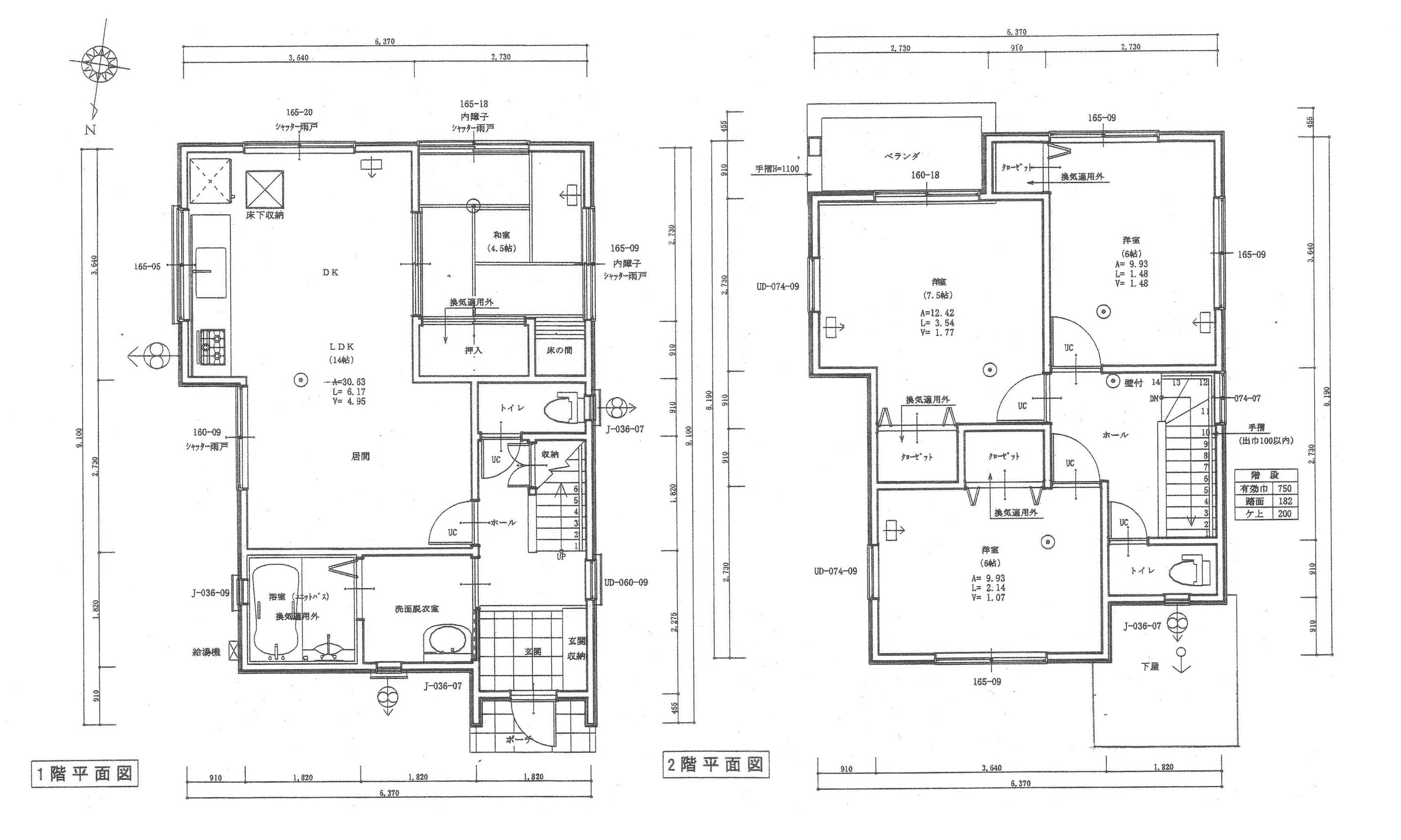
建物面積 |
92.73(4LDK) |
| 交通 |
能勢電鉄線 一の鳥居駅 徒歩5分 |

販売戸数
|
1戸 |
総区画数
|
1戸 |
地目
|
宅地 |
道路幅員
|
約4m |
用途地域
|
第1種低層住居専用地域 |
| 建ぺい率 |
50% |
容積率
|
100% |
設備
|
関西電力・プロパンガス・公営水道・公共下水 |
取引形態
|
売主 |
|
GoogleMaps Beta で運用しています。建物、土地等の位置を特定するものではありません
|

|
|